Toda instalação onde se utiliza o grupo gerador como fonte alternativa de energia elétrica necessita, obrigatoriamente, de uma chave reversora ou comutadora de fonte. Somente nos casos onde o grupo gerador é utilizado como fonte única de energia, pode-se prescindir da utilização deste dispositivo. Tem a finalidade de comutar as fontes de alimentação dos circuitos consumidores, separando-as sem a possibilidade de ligação simultânea. Para isso, as chaves comutadoras de fonte são construídas de diversas formas e dotadas de recursos que vão desde o tipo faca, manual, até as mais sofisticadas construções com controles eletrônicos digitais, comandos e sinalizações locais e remotas, passando pelos tipos de estado sólido, de ação ultra-rápida.
A concepção mais simples de chave reversora seria o contato reversível, conhecido como SPDT (Single Pole Double Trhrow) utilizado nos relés. Nos grupos geradores, a chave reversora, geralmente, é de três pólos (nos grupos geradores trifásicos). A opção manual, tipo faca, aberta, fabricada para operação sem carga, ainda encontra aplicações, seguindo-se os modelos para montagem em painel e as de acionamento elétrico, automáticas, constituídas por pares de contatores ou disjuntores motorizados com comandos à distância para abertura e fechamento.
As chaves reversoras com comandos elétricos, na sua extensa maioria, são constituídas por pares de contatores ou disjuntores motorizados. As chaves dedicadas, isto é, construídas com a finalidade específica de efetuar a comutação das fontes, não são muito conhecidas, especialmente no Brasil, onde não há fabricante que ofereça esta opção aos montadores de grupos geradores.
A não utilização da chave reversora pode causar sérios riscos às instalações e às pessoas,
da seguinte forma:
a) Queima de equipamentos, no momento do retorno da energia fornecida pela concessionária, caso o grupo gerador esteja funcionando sem chave reversora e o disjuntor geral encontrar-se INDEVIDAMENTE ligado;
b) Riscos para as pessoas e possibilidades de incêndios provocados por descargas elétricas sobre materiais combustíveis, como conseqüência do evento citado no item anterior;
c) Energização indevida da rede elétrica da concessionária, podendo vitimar eletricistas que estejam trabalhando na rede ou no quadro de medição;
d) O acionamento da chave reversora (se manual) somente deve acontecer com os equipamentos desligados (sem carga).
Todas as concessionárias de energia exigem que as chaves reversoras sejam dotadas de intertravamento mecânico. Adicionalmente, nas chaves com acionamento elétrico, são utilizados contatos auxiliares para fazer o intertravamento elétrico.
Para os sistemas com reversão de carga em transição fechada (em paralelo com a rede) há exigências específicas que devem ser atendidas, conforme estabelecido nos contratos de fornecimento e de uso e conexão, firmados entre as concessionárias e as unidades consumidoras.
As concessionárias de energia determinam que os circuitos de emergência supridos por grupos geradores devem ser instalados independentemente dos demais circuitos, em eletrodutos exclusivos. Não é permitida qualquer interligação destes circuitos com a rede alimentada pela concessionária. Os grupos geradores devem ser localizados em áreas arejadas, protegidos de intempéries e isolados do contato com pessoas leigas, principalmente crianças. Recomendam, ainda, a observância às normas técnicas, em especial a NBR-5410 da ABNT, em conformidade com o Decreto 41019 de 26/02/57 do Ministério das Minas e Energia e resolução Nº 456 da ANEEL sobre as condições gerais de fornecimento de energia.
O conceito básico é:


Chave reversora manual de três posições:
0 = (Centro) desligada
I = Fonte 1
II = Fonte 2
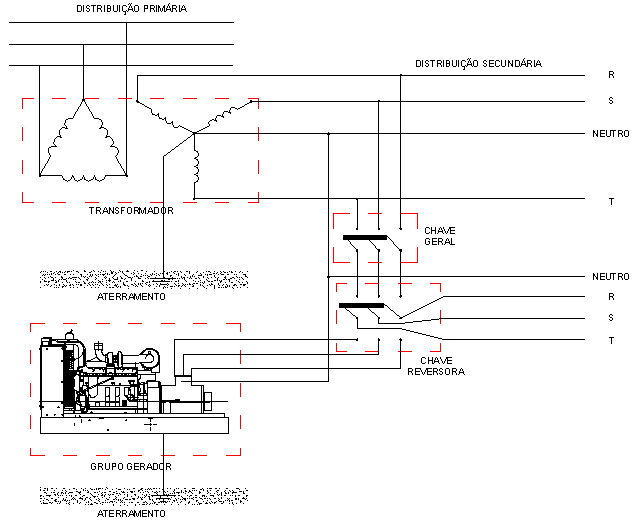
Abaixo, um diagrama típico de instalação do grupo gerador:
Na maioria das aplicações, o grupo gerador é utilizado como fonte de emergência para atender apenas cargas essenciais, casos em que há um circuito de emergência em separado dos consumidores não essenciais:
Também podemos dividir o circuito de emergência, de forma que, havendo disponibilidade de energia da fonte de emergência, estabelecemos prioridades para os circuitos alimentados.
Usualmente, adota-se como base do sistema de transferência a solução do par de contatores montados lado a lado:
A trava mecânica impede que os dois contatores possam ser fechados simultaneamente. Além disso, as bobinas dos contatores K1 e K2 são intertravadas eletricamente por meio de contatos ou relés auxiliares, de forma que impossibilite a alimentação de uma se a outra estiver energizada. Adicionalmente, podemos acrescentar lâmpadas de sinalização para indicar o estado da chave de transferência:
Nos sistemas automáticos, as funções liga e desliga rede e gerador são executadas por contatos de relés comandados pelo sistema de controle.
Na entrada do grupo gerador é indispensável um meio de desconexão e proteções contra curto-circuito. As empresas de telecomunicações exigem que, tanto o lado da rede quanto o do grupo gerador sejam protegidos com blocos de fusíveis de ação retardada. Os disjuntores termomagnéticos, quando utilizados, devem ter tempo de desconexão de 5 Hz, ou seja, cerca de 80 ms.
Para tornar o sistema automático, devemos acrescentar um dispositivo sensor da rede, capaz de perceber as falhas de tensão ou freqüência e fechar um contato para comando da partida do grupo gerador. Este(s) sensor(es) deve(m) ter seus parâmetros ajustáveis, incluindo um tempo de confirmação da falha, para evitar partidas do grupo gerador em decorrência de picos instantâneos de tensão. Deve monitorar o retorno da rede à normalidade e acionar um contato para retransferência da carga, devendo, a partir daí, o sistema de controle permitir o funcionamento do grupo gerador em vazio para resfriamento, antes de acionar o dispositivo de parada. Quando não incluídos no sistema de controle, sensores de tensão e freqüência para o grupo gerador também devem ser previstos. O monitoramento ideal é sobre as três fases, sendo freqüente o uso de sensores monofásicos no lado do grupo gerador, principalmente. Em geral, ajusta-se os sensores para variações de 20% de tensão e 5% de freqüência, para mais ou para menos, e um tempo de confirmação de dois a cinco segundos.
Por definição, os sensores de tensão e freqüência executam as seguintes funções de relés ANSI:
| N° ANSI | Função |
| 27 |
Subtensão. Relé que atua quando a sua tensão de entrada é inferior a um valor predeterminado. |
| 59 |
Sobretensão. Relé que atua quando a sua tensão de entrada for maior que um valor predeterminado. |
| 81 |
Relé de freqüência. Dispositivo que opera quando a freqüência (ou sua taxa de variação) está fora de limites determinados. |
A maioria dos fornecedores de grupos geradores utiliza estes dispositivos como parte integrante dos seus sistemas de controle ou USCA´s, de fabricação própria. No mercado, podem ser encontrados diversos fornecedores destes dispositivos, tanto analógicos quanto digitais, alguns dotados de múltiplas funções integradas.
Eventualmente, a função 81 poderá não ser utilizada para a rede, baseando-se no pressuposto de que não ocorrem variações de freqüência da rede. Entretanto, dependendo do local da instalação, estas variações podem ocorrer.
Em muitas aplicações, são utilizados disjuntores com comandos motorizados em substituição aos contatores. Alguns fornecedores disponibilizam conjuntos montados, com opção de adição de componentes definidos pelo cliente. Por exemplo:
|
Montagem
|
Opcionais |
 |
-
Alavanca de Carregamento manual das molas.
-
Botão mecânico de fechamento.
-
Botão mecânico de desligamento.
-
Indicador mecânico de molas carregadas.
-
Relé de fechamento.
-
Relé de abertura.
-
Motor elétrico com redutor para carregar as molas de fechamento.
-
Micro-switch para telessinalizar o carregamento das molas de abertura.
-
Contatos auxiliares.
-
Bloqueio da chave até que o defeito seja sanado, só podendo voltar a operar assim que seja dado o RESET manual.
-
Dispositivo eletrônico de retardo (200 ms).
-
Relé antibombeamento.
-
Relé de subtensão.
-
Bloqueio mecânico tipo Yale e cadeado.
-
Bloqueio da chave até que o defeito seja sanado, só podendo voltar a operar assim que seja dado RESET elétrico.
-
Contador mecânico de manobras.
- Proteção à terra - 51N - Ground Sensor.
- Outros acessórios, dependendo se os disjuntores são de execução fixa ou extraível
|
FUNÇÕES DO SISTEMA DE TRANSFERÊNCIA AUTOMÁTICA

Nos controles digitais, estas funções estão inclusas e apenas os pontos de ligação dos contatos de comando são acessíveis.
Considerando a possibilidade de manutenção ou reparos no sistema de transferência, é conveniente a instalação também de uma chave de bypass. Esta chave, permite que as cargas sejam alimentadas diretamente pela rede ou pelo grupo gerador, sem utilizar a chave de transferência, permitindo que esta possa ser desativada temporariamente ou removida para reparos. A utilização deste componente requer detalhamento do projeto junto ao usuário para definir a seqüência de operação desejada, a fim de eliminar os riscos de paralelismo acidental das fontes. É possível estabelecer o bypass só para a rede, para o grupo gerador ou para ambos alternativamente, dependendo da configuração desejada. No caso das chaves dedicadas, o bypass pode ser com ou sem interrupção da alimentação das cargas de emergência. Alguns fornecedores disponibilizam este item como opcional.
CHAVES DEDICADAS
Entende-se como chaves de transferência dedicadas àquelas construídas especificamente para comutação entre duas fontes de energia, diferentemente da concepção anterior com base em contatores ou disjuntores. Basicamente, é um mecanismo que combina as ações de massa e campo magnético para impulsionar os contatos no sentido de uma das fontes ao mesmo tempo em que desconecta a outra, sem possibilidade de paralelismo acidental. As concepções utilizadas variam de um para outro fabricante. A Cummins Power Generation, uma das mais conceituadas marcas, utiliza um atuador linear bi-direcional para a mudança de contatos entre as fontes, além de prever o intertravamento elétrico dos comandos e oferecer diversos recursos de supervisão e controle microprocessados.

A Hubbell oferece um tipo de chave dedicada similar, porém com o mecanismo de acionamento diferente.
 |
- - Contatos da entrada de rede
- - Contatos da entrada de grupo gerador;
- - Terminais de ligação da entrada de gerador;
- - Terminais de saída para a carga;
- - Conexões de campo;
- - Controle de transferência;
- - Contatos auxiliares de grupo gerador;
- - Relé de controle de transferência;
- - Conjunto de acionamento;
- - Contatos auxiliares de rede;
- - Dispositivo de teste (opcional);
- - Conexões de campo;
- - Terminais de entrada da rede;
|
PROBLEMAS DA TRANSFERÊNCIA
Cada circuito consumidor tem características próprias, resultantes dos dispositivos alimentados. Um edifício comercial difere fundamentalmente de uma indústria com a mesma capacidade instalada. Enquanto no edifício predominam cargas de iluminação, elevadores, pequenos no-breaks, computadores e ar condicionado, na indústria a carga predominante, provavelmente, será de motores elétricos.
Quando ocorre uma falta de energia, o grupo gerador de emergência dotado de sistema de transferência automática é acionado e no intervalo médio de 10 a 15 segundos assume as cargas. Este intervalo é suficiente para que os motores em funcionamento parem de girar e todos os circuitos se desenergizem. Entretanto, quando do retorno da concessionária, o sistema aciona o desligamento do gerador e o ligamento da rede, um após o outro, num intervalo médio de 100 a 200 ms. Isto faz com que, ao ser religada a rede, os motores, por inércia, ainda estão girando praticamente na mesma rotação. O mesmo ciclo acontece nas transferências onde se utilizam grupos geradores nos horários de ponta, quando no início se transfere a carga da rede para o gerador e no final, quando ocorre a transferência inversa. Os motores em movimento, sem receber energia, geram tensão que percorre o circuito em sentido inverso, no intervalo de transferência, que irá se contrapor à fornecida pela fonte que assume a carga, produzindo um surto capaz de trazer perturbações e queima de equipamentos. Quando há este tipo de problema, a solução é fazer a transferência num intervalo de tempo programado, desligando-se uma fonte e aguardando um tempo suficiente para que todos os motores parem, antes de efetuar o ligamento da fonte substituta. A isto, habitualmente chamamos de transferência com transição programada.
Para os edifícios comerciais com muitos elevadores, uma alternativa freqüentemente adotada é incluir no sistema um relé programado para fechar um contato durante o tempo suficiente para que todos os elevadores sejam desligados no andar térreo (ou no mais próximo de onde se encontram), permanecendo desligados até que a transferência se realize. Esta providência é interessante porque, no caso da transferência da rede para o gerador, permite que os elevadores sejam acionados um após o outro, reduzindo assim o surto de corrente de partida que ocorreria com a partida simultânea de todos os elevadores ao mesmo tempo. Esta função é um item opcional nas chaves Cummins Power Generation.
Uma outra forma de efetuar a transferência sem perturbações é a transição fechada, em paralelo com a concessionária, que pode ser instantânea ou com rampa de carga. Para adotar esta solução, é necessário consultar a concessionária e, conforme o caso, aditar o contrato de conexão e uso, para prever esta função. É a forma mais conveniente para quem utiliza grupos geradores para geração nos horários de ponta.
A transferência instantânea significa aplicação de carga brusca e a rampa de carga só pode ser utilizada nas transferências com as duas fontes presentes e normais. No caso de uma falta de energia, a entrada do grupo gerador na condição de emergência é feita em barramento morto, assumindo todas as cargas que estiverem ligadas, instantaneamente.
Existem chaves que efetuam a transferência em transição fechada com um tempo de paralelismo menor do que 5 graus elétricos (0,00023 seg). Como as proteções normalmente exigidas pelas concessionárias têm tempos de atuação de 100 ms, estas se tornam desnecessárias, porém, podem ser exigidas, a seu critério, por condições contratuais.
 |
 |
|
Chave de transferência automática ASCO série 7000 microprocessada e com bypass de isolação, montagem extraível.Transferência em transição fechada dentro do intervalo de 5 graus elétricos.
|
Podem ser exigidas as seguintes proteções ANSI, além de outras consideradas desejáveis pela concessionária:
|
Nº ANSI
|
FUNÇÃO
|
|
27
|
Relé de Subtensão - Relé que atua quando a sua tensão de entrada é menor do que um valor predeterminado
|
|
32
|
Relé Direcional de Potência - Relé que atua quando um fluxo de potência circula no sentido contrário ao predeterminado.
|
|
47
|
Relé de Seqüência de Fase de Tensão - Relé que atua para um valor de tensão polifásica na seqüência de fase estabelecida.
|
|
59
|
Relé de Sobretensão - Relé que atua quando sua tensão de entrada for maior do que um valor predeterminado.
|
|
81
|
Relé de freqüência - Dispositivo que opera quando a freqüência (ou taxa de variação) está fora de limites predeterminados.
|
Os contatores ou disjuntores recebem a designação ANSI 52 - Disjuntor de Corrente Alternada = Dispositivo de manobra e proteção capaz de estabelecer, conduzir e interromper correntes alternadas em condições normais do circuito, assim como estabelecer, conduzir por tempo especificado e interromper correntes alternadas em condições anormais especificadas do circuito, tais como as de curto-circuito.
CHAVES ESTÁTICAS
Resultado da tecnologia dos semicondutores, atualmente são comercializadas chaves de transferência sem contatos móveis, baseadas em retificadores controlados de silício (SCR).
São utilizadas, principalmente, nos sistemas UPS (Uninterruptible Power Suppliers) ou no-breaks estáticos e atualmente começam a encontrar aplicações nas instalações de grupos geradores. A transferência com chave estática ocorre em transição aberta, isto é com interrupção de 2 a 4 ms. Esta interrupção é imperceptível e não detectada pelos equipamentos consumidores.
O SCR é um diodo que opera como um circuito aberto quando nenhuma corrente é aplicada ao GATE. Um sinal aplicado ao GATE fecha o circuito e faz com que ele se mantenha fechado, conduzindo do ANODO para o CATODO, enquanto permanecer o sinal. Uma vez removido o sinal, ele irá parar de conduzir quando a corrente circulante atingir o valor zero. Usando esta propriedade, é possível construir um sistema com controle eletrônico gerando o sinal para o gate e montar uma chave comutadora de fontes onde é possível determinar o momento em que uma ou outra fonte será ativada ou desativada.
Sistemas microprocessados adicionados aos controles adotados, implementam a utilização desta solução. Entretanto, neste tipo de transferência a carga é aplicada subitamente, na sua totalidade, ao grupo gerador.
TRANSFERÊNCIA COM RAMPA DE CARGA
É feita na condição de transição fechada, em paralelo com a rede, durante um tempo programado. O sistema de transferência necessita monitorar, por meio de transformadores de corrente, a energia circulante e atuar sobre o sistema de combustível do motor. Sua utilização requer proteções definidas pela concessionária local.
A transferência com rampa de carga é feita sincronizando o grupo gerador com a rede e, em seguida, comandando o fechamento das chaves de paralelismo (52). O paralelismo, feito por um sincronizador automático, controla tensão e freqüência do grupo gerador e verifica a seqüência de fases. No caso de falha da rede e entrada do grupo gerador na condição de emergência, teríamos a seqüência:
No caso da partida do grupo gerador com a rede presente (horário de ponta):
O sistema deve supervisionar o fluxo de corrente e manter a dosagem do combustível para que, no momento do fechamento de 52G o grupo gerador não entre em carga nem seja motorizado pela rede. Uma vez fechado 52G, tem início o processo de transferência de carga numa taxa programada com incremento em kW por segundo e o limite não pode exceder a potência do grupo gerador.
Em geral, o mesmo sistema pode ser utilizado para suprimento de energia em regime de peak shaving. Isto é, o grupo gerador permanece em paralelo com a rede suprindo a energia que exceder à demanda prefixada para a rede. As configurações de operação são oferecidas em diversas modalidades e praticamente todos os fornecedores atualmente dispõem de sistemas digitais que podem ser configurados para atender às necessidades do cliente.
O grupo gerador poderá também ser utilizado em paralelo com a rede para geração de potência reativa (KVAr). Neste caso, o sistema de controle deverá ser programado para operar sob fator de potência constante e fazer variar a excitação do alternador, gerando mais ou menos potência reativa. Para a geração de potência ativa o sistema atua sobre o governador de rotações, fornecendo mais ou menos combustível, mantendo a rotação constante e variando a quantidade de kW fornecidos às cargas.